クオリ(本格的収納庫)
剛性に富んだ軽量形鋼の溶接構造で雨やホコリ、害虫もシャットアウト!
景観を損ねず、あなたの大切なものを守ります ピッタリ閉まる気密性の高いドアであなたの大切なものをしっかり守ります。
■家の外観に合わせて、外装ボード、屋根、ドアカラーをお選びください
※写真はイメージです。 ■オーダー製作も可能です
|
■お客さまの声本格収納庫「クオリ」をご購入いただいたお客様より嬉しいお声をいただきました。
| |
福岡県在住 T様 | 「決め手はサイディングですね!」 ■購入の経緯 |
福岡県在住 K様 | 「設置間口を広くとる必要がないのが購入の決め手です」 ■購入の経緯 |
おしゃれな本格的収納庫 クオリ
剛性に富んだ軽量形鋼の
景観を損ねず ピッタリ閉まる気密性の高いドアであなたの大切なものをしっかり守ります。 | ||
![]() ガーデニング用品の格納庫として そのほかにも、
様々なシーンでご使用いただけます。 | ||
■家の外観に合わせてお選びいただけます
| ||
■オーダー製作も可能です
クオリLL型(サイズ変更) | ||
■お客さまの声
|
■製品仕様 |
| 仕様 | 型式 | ||||
|---|---|---|---|---|---|
S型 | M型 | L型 | LL型 | ||
| 寸法 | 開口寸法 | W885×H1840 | W885×H1840 | W1600×H1880 | W1800×H1880 |
| 巾 | 2030(1955) | 2030(1955) | 2430(2325) | 2710(2625) | |
| 奥行き | 1030(925) | 1530(1425) | 1830(1725) | 1830(1725) | |
| 全高 | 2230(2090) | 2230(2090) | 2350(2230) | 2350(2230) | |
| 構造・仕上げ | 屋根 | カラーガルバリウム鋼板 | |||
| 外装 | 窯業系サイディング | ||||
| 内装 | ベニヤt5.5mm | ||||
| ドア | パイプハンドル式 | パイプハンドル式 | – | – | |
| シャッター | – | – | 軽量スプリング シャッター | 軽量スプリング シャッター | |
| 棚 | 片サイド2段 | ||||
| 床 | カラー耐水合板t12 | ||||
| オプション | 観音開きドア、換気口、サッシ窓 ※詳細はお問い合わせください | ||||
※単位mm
■製品の詳細 |
※特注品も対応可能です。お気軽にお問い合わせください。 |
■製品仕様 |
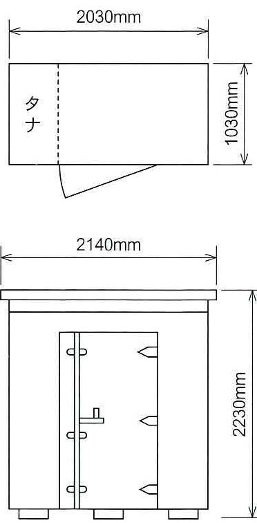
【S型】 |
|---|
|
開口寸法 |
| W885×H1840mm |
| 巾 |
| 2030(1955)mm |
| 奥行き |
1030(925)mm |
| 全高 |
| 2230(2090)mm |
| 屋根 |
| カラーガルバリウム鋼板 |
| 外壁 |
| 窯業系サイディング |
| 内装 |
| ベニヤt5.5mm |
| ドア |
| パイプハンドル式 |
| シャッター |
| – |
| 棚 |
| 片サイド2段 |
| 床 |
| カラー耐水合板t12mm |
【M型】 |
|---|
|
開口寸法 |
| W885×H1840mm |
| 巾 |
| 2030(1955)mm |
| 奥行き |
1530(1425)mm |
| 全高 |
| 2230(2090)mm |
| 屋根 |
| カラーガルバリウム鋼板 |
| 外壁 |
| 窯業系サイディング |
| 内装 |
| ベニヤt5.5mm |
| ドア |
| パイプハンドル式 |
| シャッター |
| – |
| 棚 |
| 片サイド2段 |
| 床 |
| カラー耐水合板t12mm |
【L型】 |
|---|
|
開口寸法 |
| W1600×H1880mm |
| 巾 |
| 2430(2325)mm |
| 奥行き |
1830(1725)mm |
| 全高 |
| 2350(2230)mm |
| 屋根 |
| カラーガルバリウム鋼板 |
| 外壁 |
| 窯業系サイディング |
| 内装 |
| ベニヤt5.5mm |
| ドア |
| – |
| シャッター |
| 軽量スプリング シャッター |
| 棚 |
| 片サイド2段 |
| 床 |
| カラー耐水合板t12mm |
【LL型】 |
|---|
|
開口寸法 |
| W1800×H1880mm |
| 巾 |
| 2710(2625)mm |
| 奥行き |
1830(1725)mm |
| 全高 |
| 2350(2230)mm |
| 屋根 |
| カラーガルバリウム鋼板 |
| 外壁 |
| 窯業系サイディング |
| 内装 |
| ベニヤt5.5mm |
| ドア |
| – |
| シャッター |
| 軽量スプリング シャッター |
| 棚 |
| 片サイド2段 |
| 床 |
| カラー耐水合板t12mm |
※観音開きドア、換気口、サッシ窓のオプションがございます。詳細はお問い合わせください。
■ご注文から納品までの流れ
納品までの流れページにてご確認ください。
関連商品
こちらの商品をベースに、カスタマイズ、特注製作が可能です。お気軽にお問い合わせください。




















※写真はイメージです。
※特注品も対応可能です。お気軽にお問い合わせください。



